一、工程概況
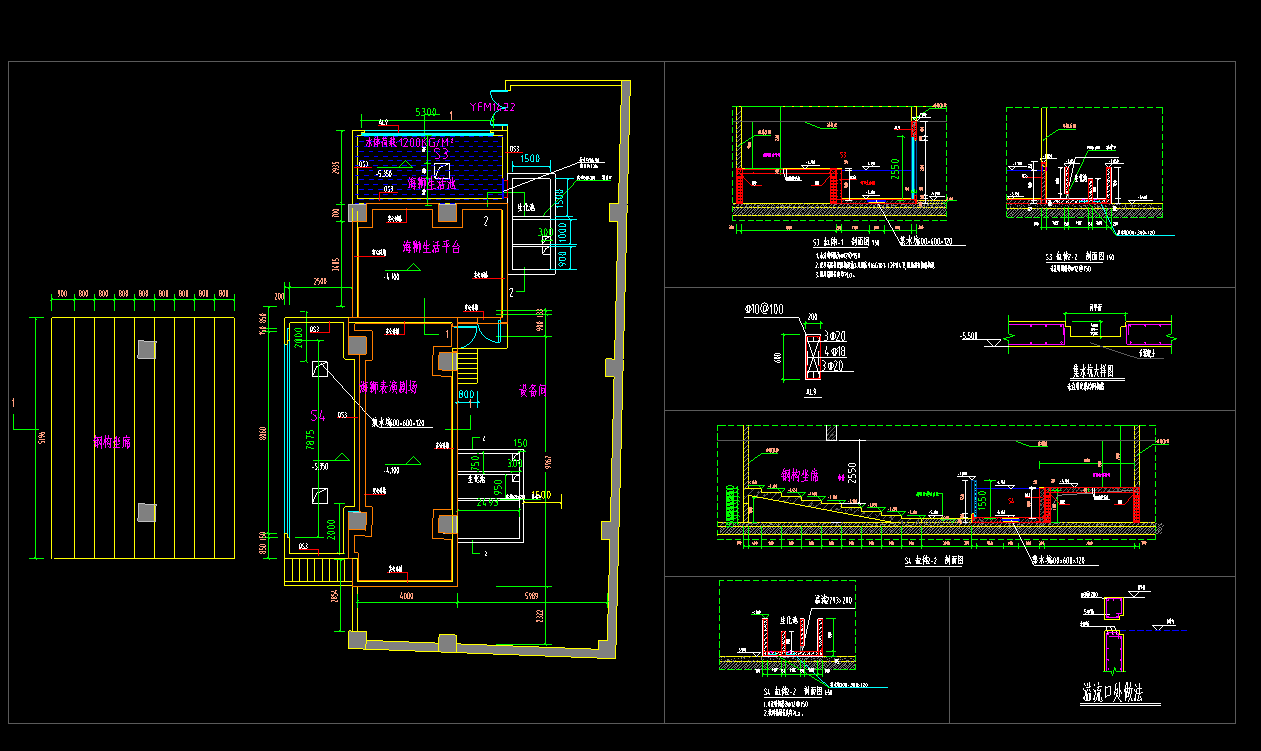
1,本工程為海洋館結構設計,項目位于內蒙古自治區呼和浩特市。
2、建筑類型.商業。綽構型式A段為框架結構,c段為框架-核心筒結構。基礎形式為筏板。
3、根據委托單位提供的地下一層海洋館荷載要求、既有結構竣工圖等資料對結構進行設計。
4、施工單位施工前應認真核對本圖紙與現場實際,圖示構件定位及尺寸均應以現場為準,若發現有出入應做好相應記錄、并通知設計單位。
5、本圖紙為結構加固設計專業圖紙,其他專業應與結構設計相配套,施工前應認真核對其他專業圖。

三、設計依據
1、委托方提供的地下一層海洋館荷載要求。
2、委托方提供的《海東幔城商業結構施工圖》(2018-Z1-05-5Y}內靠古工大建筑設計有限責任公司。
3、本工程設計使用的主要標準、規范、規程、圖集:
《建兢結構荷載規范》GB50009-2012
《混凝土結構設計規范(2015年版)》GB50010-2010
《建筑抗震設計規范(2016年版)》GB50011-2010
《混凝士結構加固設計規范》GB50367-2013
《工程結構加固材料安全性鑒定技術規范》GB50728-2011
《自密實混凝士應用技術規程》JGJ/T283-2012
《混凝土結構后錨固技術規程》JGJ145-2013
《鋼筋機械連接連接通用技術規程》JGJ107-2016
《鋼筋焊接及驗收規程》JGJ18-2012
《建筑結構制圖標難》GB/T50105-2010
《混凝土結構工程施工質量驗收規范》GB50204-2015
《建筑結構加固工程施工質量驗收規范》GB50550-2010